
西武多摩湖線 一橋学園駅の北口を降りて約3分。元々は寝具センターで布団などが販売されていた場所だとか。まるでミュージカルのように歌い出したくなるにぎやかな商店街の一角にある、屋上付きで1階から3階まで丸ごと使える店舗兼住居物件です。業種は相談OK。駅近の商店街の角地に路面店を構え、住みながらお店を開くチャンス![賃貸]



バーやアジア料理、カフェなどの飲食店やリユース着物屋など、多彩なお店が並ぶ学園坂商店街は、人が集まり昭和の良き香りが。カラフルなフラッグが掲げられていて、まるでまちの人がミュージカルのように歌い出しそうな雰囲気。この商店街の一角に物件があります。元々は布団屋さんが営まれていたようです。
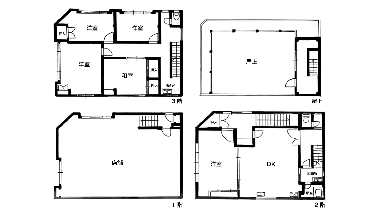
まずは、一階から見てみましょう。今はシャッターが閉まっている状態ですが、実際は通りに面して大きなガラスドアと窓があり、お店をしっかりアピールできます。また、収納棚も充実していて、たくさんの商品を陳列できます。広い空間をどう活かすかは考えどころ。例えば、デザイン雑貨を販売しながらワークショップをしたり、リメイク古着屋兼アトリエにしたり、写真スタジオ+ギャラリーにしたりなんて使い方もできそう。




2階への階段を上ると、お家の玄関のようなオブジェがお出迎え。2階には、広々としたダイニングキッチンと洋室があります。






続いて、3階はどうなっているのでしょう。和室が1部屋、洋室が3部屋あり、使い勝手が良さそうです。





さらに屋上に上がると、大きな空が広がり、まちを一望できます。まるで商店街を独り占めしているような感覚に。洗濯物も干しやすい上、ベンチやテーブルを置いて憩いのスペースにしたり、マットをしいてヨガをしたり、植物を育てたり。楽しみが広がります。





専有面積が210.31㎡と広い、ユニークな店舗兼用住居。例えば、何人かの友達と家をシェアしながら共同でお店を開いたり、二世帯家族で商い暮らしをはじめたりもできそう。元布団屋だけに、“お布団一枚!”な使い方を考えてみませんか。
内覧をご希望の方は、ページ下の「内覧希望・お問い合わせ」からお気軽にご連絡ください。
20万円(税込)
賃料に含む
100万円 ※償却20%(別途消費税)
新賃料の1ヶ月分
保証会社要加入(4C’S:初回保証料100%)/保険は要別途見積
210.31㎡
東京都小平市学園東町1丁目
西武多摩湖線「一橋学園」駅 徒歩3分
鉄骨造3階建
1978年9月
5年間(定期借家契約)
設備はございません ※残置物・既存造作は現状有姿(そのまま)でのお引き渡し
引渡時期相談
業種応相談(匂いが強い・煙を出す業態は除く)/事務所利用相談可/現況のままお引渡し(建物躯体の維持に必要な管理、修繕費用のみ貸主負担、それ以外は借主負担)
媒介
2019年5月30日
2025年9月29日
2026年1月31日
株式会社タウンキッチン
東京都小金井市梶野町1-2-36
0422-30-5800
東京都知事(2)101857号
※掲載の情報が現状と異なる場合には、現状を優先するものとします。

一般的な物件だけでなく、DIY可能な物件や店舗併用住宅など、一人ひとりのイメージや目的に合う住居・店舗・事務所をご紹介します。これまでも、多くの物件と起業家をマッチングし、まちに続々と新しいお店・事業が生まれてきました。具体的な想定をお持ちの方はもちろん、どんな物件があるか見たいといったご相談も大歓迎です。
1、創業支援の専門家による物件紹介
毎年200件の創業相談に応じており、事業の特徴を踏まえた物件紹介はもちろん、補助金の情報提供や事業計画のアドバイスなど、事業の実現に向けた総合的なサポートを行います。
2、リノベーションによる利活用
起業家や弊社のアイデアとオーナーの希望を掛け合わせ、通常の不動産会社が扱いにくい物件についても、周辺環境や各種法令を踏まえ、既存物件の特徴を活かした利活用についてご提案します。
3、行政、金融機関などの地域ネットワーク
空き家の有効活用に関する行政の取り組み、資金調達面を支援する地域密着の金融機関等と密に連携を図り、地域のネットワークを活かしながら起業家と不動産のコーディネートを行います。
不動産相談窓口
問い合わせフォーム、または下記までご連絡ください。本物件に関するお問い合わせの場合は、記事名をあわせてお知らせください。
株式会社タウンキッチン
TEL:0422-30-5800 (受付時間:平日10:00〜18:00)