
今回ご紹介する物件は、野川に近く、武蔵小金井駅から約18分ほどの前原町の住宅街にあります。福祉関係の用途で物件探しに苦労される方も多くいらっしゃると思いますが、ここはまさに“福祉のための”物件。すでにスロープやウッドデッキなどが整備されているため車椅子でも行き来しやすく、大きな改修工事をしなくても良いのもポイントです。例えば、障がいを持つ方や、子ども、高齢者向けの施設、困りごと相談所など、まちの中でやさしいケアの拠点をひらきませんか?[賃貸]

物件の場所は野川に近く、市立中学校がそばにあり、まちの人の暮らしが根付く住宅街が広がります。物件がある前原町エリアには、リンジンでもご紹介した小商いが集まる丸田ストアーやWISE MAN COFFEEなど、ユニークな事業者も多数。
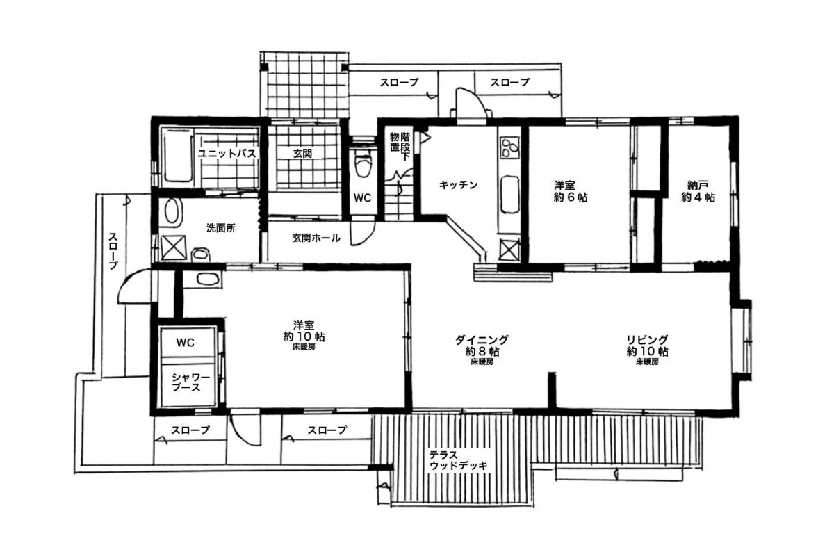
三角屋根がシンボリックな広々とした木造の二階建てで、使用できるのは1階部分。門から入ると、玄関までスロープ通路があり、車椅子でスムーズに移動できます。


室内に入ると、約8帖のダイニングと10帖のリビングが広がります。広々とした空間で、窓が大きくて、天井も高く、彩光もバッチリ。床暖房も付いていて、どんな季節でも快適に過ごせそう。ここで食事をしたり、レクレーションや地域の人を招いたイベントなどを開いてもよさそうです。



リビング・ダイニングの扉を開けると、ウッドデッキが広がります。車椅子での移動もしやすく、外気浴やくつろぎの空間にできそう。
さらに、10帖と6帖の洋室の部屋もあり、例えば居室や、相談室、スタッフの休憩室になどにも利用できそうです。キッチンやトイレなどの水回りも綺麗な状態で、大きな改修工事はせずにすみそう。ここまで環境が整っているため、これから福祉の仕事をはじめたいという方にもぴったりですね。




ますます地域に求められる、顔が見える福祉のサービス。一口に福祉といっても、例えば、高齢者のデイサービスや、障がい者のための就労支援施設、子どもの居場所づくり、福祉の相談所やケアマネジメントの事務所などなど、多様な可能性が広がります。まちの人の暮らしの延長にある、安心できるケアの拠点を、ぜひここで開きませんか。
32万円(非課税)
なし
1ヶ月
4ヶ月
指定の保険会社加入/火災保険加入
105.90㎡
東京都小金井市前原町5丁目
JR中央線 武蔵小金井駅 徒歩18分
京王バス「貫井横町入口」 徒歩4分
木造2階建 所在階1階
2002年月不詳
2年
新賃料の1ヶ月
床暖房、スロープ
相談
業種:福祉関係のみ/駐車場1台付
媒介
2025年11月13日
2026年1月9日
2026年1月31日
株式会社タウンキッチン
東京都小金井市梶野町1-2-36
0422-30-5800
東京都知事(2)101857号
※掲載の情報が現状と異なる場合には、現状を優先するものとします。

一般的な物件だけでなく、DIY可能な物件や店舗併用住宅など、一人ひとりのイメージや目的に合う住居・店舗・事務所をご紹介します。これまでも、多くの物件と起業家をマッチングし、まちに続々と新しいお店・事業が生まれてきました。具体的な想定をお持ちの方はもちろん、どんな物件があるか見たいといったご相談も大歓迎です。
1、創業支援の専門家による物件紹介
毎年200件の創業相談に応じており、事業の特徴を踏まえた物件紹介はもちろん、補助金の情報提供や事業計画のアドバイスなど、事業の実現に向けた総合的なサポートを行います。
2、リノベーションによる利活用
起業家や弊社のアイデアとオーナーの希望を掛け合わせ、通常の不動産会社が扱いにくい物件についても、周辺環境や各種法令を踏まえ、既存物件の特徴を活かした利活用についてご提案します。
3、行政、金融機関などの地域ネットワーク
空き家の有効活用に関する行政の取り組み、資金調達面を支援する地域密着の金融機関等と密に連携を図り、地域のネットワークを活かしながら起業家と不動産のコーディネートを行います。
不動産相談窓口
問い合わせフォーム、または下記までご連絡ください。本物件に関するお問い合わせの場合は、記事名をあわせてお知らせください。
株式会社タウンキッチン
TEL:0422-30-5800 (受付時間:平日10:00〜18:00)